Top.Mail.Ru
Тула

Баня Термы

  • Артикул: Бан.П0248
  • Площадь: 24 м²
Цена
1 218 900 р
1 268 900 р
Характеристики:
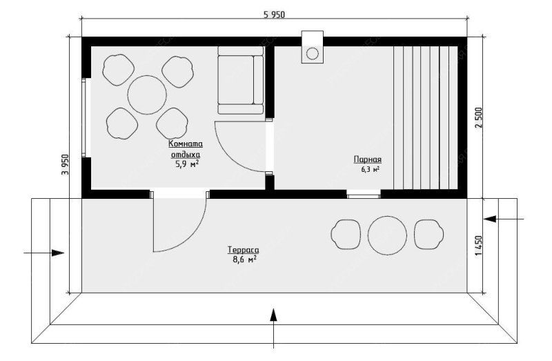
Размер:
6х4 м

Баня Термы
  • Материал

    Конструкция изготовлена из хвойных пород древесины (ель, сосна)

    Сорт по лицевой стороне: АВ

    Материал — массив сухой строганный камерной сушки + клееный брус

  • Крепёж

    В крепеже не используем черных саморезов, только желтопассированные

    Крепеж не является сборно – разборным.

  • Требования к участку

    Площадка должна быть максимально ровная, избавлена от растительности (деревья, кусты, высокая трава), должна располагаться поблизости от инженерных коммуникаций.

    В случае перепада участка – просьба сообщить об этом.

  • Генератор

    На участке необходимо электричество, для производства работ по строительству. В случае его отсутствия необходимо об этом сообщить на стадии оформления заказа. В этом случае привозится генератор.

  • Уборка и вывоз мусора

    Мусор собирается в мешки, вывоз с объекта не осуществляется.

  • Фундамент

    Дополнительно приобретается:

    1. Свайный - Винтовые сваи 89×2500 или 108×2500 (стальная труба, залитая бетоном, оголовок)

    2. Ленточный - Фундаментная лента мелкого заглубления

    3. Монолитная плита – монолитная бетонная плита

  • Чистовой пол

    Половая доска шпунтованная, толщиной не менее 35 мм


  • Обшивка цоколя

    Нижняя обвязка обшивается по умолчанию в 1 ряд доской 20х140 мм или 20х190 мм

  • Стены

    Имитация бруса 16×135 мм внутри, имитация бруса 21×135 мм снаружи

  • Утепление

    Варианты, при необходимости (в закрытых конструкциях):

    Утеплитель - минеральная вата KNAUF или аналоги 100 мм, 150 мм, 200 мм (с перевязкой швов, гидроизоляция, влаго-ветрозащитная мембрана, пароизоляция)

    Нет – базовый вариант

  • Парная

    Вагонка и полок из осины

  • Остекление

    Окна в бронирующей пленке. Цвет пластика белый или коричневый.

    В комплектацию входят замки с внутренней стороны на окна и 1 двухсторонняя (врезная) ручка с ключом.

    Возможна замена на:

    Однокамерный энергосберегающий стеклопакет ПВХ 60 мм

  • Потолок и свесы

    Свесы подшиты – имитация бруса 16×135 мм

  • Стропильная система

    Сечение подбирается на этапе проектирования

  • Обрешетка

    Доска 20×140 мм строганная

  • Материал кровли

    Рулонная кровля

  • Цвет кровли

    Красный, зеленый, коричневый или серый 

  • Покраска

    Огнебиозащита (бесцветная) или декоративный деревозащитный состав "Здоровый дом" (цвет на выбор) – нижняя обвязка, лаги, пол и цокольная доска.

    Вся конструкция обрабатывается декоративным деревозащитным составом в 2 слоя - при необходимости дополнительно.

    Предварительно деревянные детали шлифуются.

  • Договор

    Заключается при приезде на участок.

    Полный пакет документов.

Выберете категорию:
Пропитка «Здоровый дом»

Деревозащитная и декоративная пропитка, которая подчеркивает естественную красоту материала и натуральную структуру дерева. Защищает от влаги, ультрафиолетовых лучей и других атмосферных воздействий. Препятствует гниению, образованию плесени. Обеспечивает надежную защиту деревянной поверхности от насекомых-вредителей.

Срок службы 3-5 лет.

Пропитка «Tikkurila Vinha»

Tikkurila Vinha кроющий антисептик с большой цветовой палитрой, который формирует на поверхности материала защитное покрытие, которое замедляет процессы разрушения древесины. Состав краски включает в себя водоотталкивающие компоненты и позволяет не только сохранить материал и продлить срок его службы, но и существенно увеличить эстетическую привлекательность конструкции

Срок службы 7-10 лет.

Гибкая черепица «Финская соната»

Гибкая черепица «Финская Соната» – это надежный и современный кровельный материал. Идеально подходит для практичных людей, которым, прежде всего, важна экономичность.

Гибкая черепица «Кантри»

Кантри — двухслойная черепица, доступная каждому! Имея большой выбор цветов, она органично дополнит стиль любого дома, а фактурный рельеф придаст кровле солидность и индивидуальность.

Фальцевая кровля

Фальцевая кровля - это металлическое кровельное покрытие. Обладает максимальной герметичностью, водонепроницаемостью и продолжительным сроком эксплуатации. Эстетично смотрится на любой конструкции и имеет широкую цветовую гамму.

Металлочерепица

Металлочерепица ― один из наиболее современных и востребованных материалов для облицовки кровли. Представляет собой рельефные листы из оцинкованной стали с полимерным покрытием. Металлочерепица хорошо переносит воздействие высоких и низких температур. Она не теряет эксплуатационных качеств, не покрывается трещинами, не деформируется. В процессе эксплуатации металлочерепица не выделяет токсичных соединений, безопасна в использовании.

Палитра водосточных систем

Водосточная система служит для сбора воды с кровли и отведения её от фасада и фундамента постройки, защищая тем самым её от негативного воздействия атмосферных осадков. Водосточная система подходит практически к любому типу кровли, не боится снега, града и сильных дождевых нагрузок, обладает прекрасной устойчивостью к механическим воздействиям. Элементы водосточной системы жёстко фиксируются между собой, что обеспечивает её целостность и сохранность на протяжении всего срока эксплуатации.

Палитра древесно-полимерного композита (напольное покрытие)

ДПК — это древесно-полимерный композит, современный материал, предназначенный для наружного применения в любых климатических условиях с самыми интенсивными нагрузками. Не подвергается короблению и растрескиванию. В процессе производства волокна древесины смешиваются с полиэтиленом низкого давления, добавками и красителями, что позволяет защитить их от воздействия бактерий и грибков, сохранить привлекательный вид изделия в течение длительного срока эксплуатации. При этом покрытию не нужны ни лак, ни специальная пропитка, ни другие защитные и декоративные средства.

Заказать звонок
Каталог товаров
Меню
Заказать звонок MAX Telegram
Подпишитесь на наш канал — у нас интересно! Подпишитесь на наш канал — у нас интересно!